project-1 closing-icon arrow-icon arrow-icon

Machbarkeits­studie

Ort / Objekt: Gewächshaus in Wallenbuch
Planung: Sommer - Winter 2022

Collage Ansicht Bauernhof
Collage Sicht aufs Land um den Bauernhof

Vorgesuch und Ideensuche

Eine Ortsanalyse auf dem Bauernhof in Wallenbuch zeigte, dass sich die landwirtschaftlich funktionierende Struktur über die Jahre zu einer neuen, schwer einzustufenden Sturktur veränderte. Dies zeigt sich in einem Missverhältnis von landwirtschaftlicher Nutzung und neuen anderen Nutzungen.

Die Vision einer zukünftig ökologischen und nachhaltigen Landwirtschaft führte zur vorliegenden Projektidee. Dieser Vorsatz soll in einer Stärkung des Gemüseanbaus und einer vielfältigen Landwirtschaft umgesetzt werden.
Ein neues Gebäude soll einerseits diese Bedürfnisse aufnehmen und zudem den Aussenraum klar als Begegnungsort definieren. Das Projekt hat zum Ziel, durch gemeinsames Arbeiten, Diskutieren und Sein die Beziehung zwischen Hof und Landwirtschaft zu stärken.

Der Aussenraum wird durch die bestehenden Obstbäume und das neue Gebäude als fassbaren Raum gelesen. Durch die grossen Eingänge zum Gewächshaus und den Verarbeitungsräumen wird die Adresse des Gebäudes geschaffen. Im Sommer kann die Arbeit durch die grossen Tore und Türen nach aussen auf den Vorplatz gebracht werden. Dadurch wird der Arbeitsraum natürlich vergrössert. Das grosse Potenzial des Hofraumes wird erst mit der Verbindung von innen zu aussen ausgeschöpft.

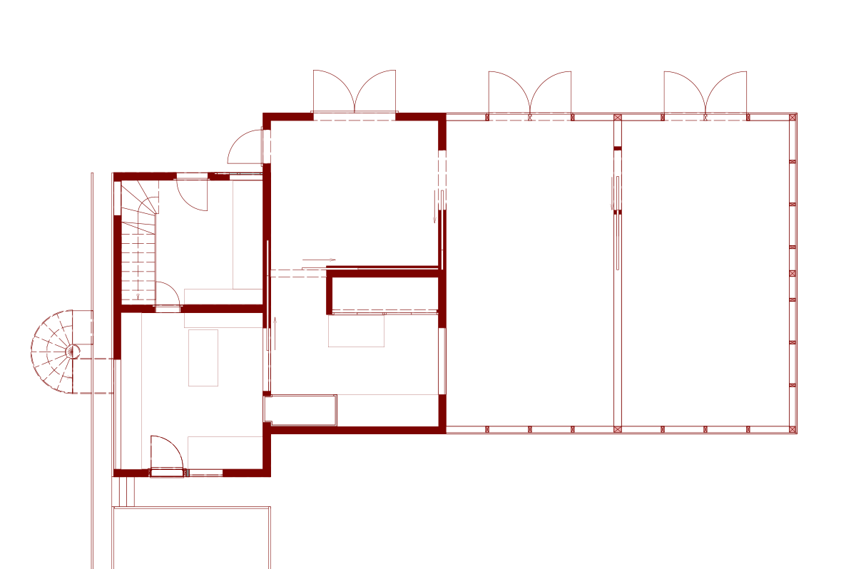
Das Innere des Gebäudes setzt sich zum einen aus den Arbeitsräumen und zum anderen aus einem Glashaus zusammen. Im Glashaus ist das eigentliche Gewächshaus für die Setzlingsanzucht und den Gemüseanbau in den Winter- und Frühlingsmonaten. Im anderen Gebäudeteil sind Verarbeitungsräume für Gemüse, Früchte und Kräuter. Im oberen Teil des Gebäudes stehen Räumlichkeiten für das Beisammensein und das Abhalten von Sitzungen zur Verfügung.

Luftaufnahme mit Bepflanzungsplan
Luftaufnahme mit Bepflanzungsplan
Luftaufnahme mit Bepflanzungsplan
Luftaufnahme mit Bepflanzungsplan